The city of Tucson finally got a closer look at what HSL Properties wants to build in place of the colorful yet dated buildings of La Placita Village.
The developer offered up preliminary conceptual designs to the Tucson-Pima County Historical Commission that feature retaining several historic structures while building a new six-story apartment building.
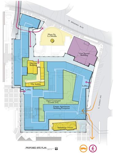
Jonathan Mabry, the cityβs historic preservation officer, said the plans will protect three existing buildings in the iconic development at 110 S. Church Ave. The remaining buildings will be torn down to make room for the new development.
Each of the three buildings are eligible for listing in the State and National Registers of Historic Places by the State Historic Preservation Office.
They include the Samaniego House, the Flin Building, and the Stables, all that date from the late 19th century to the early 20th century and are surviving remnants of Tucsonβs downtown barrio.
The massive proposed project does not extend to the historic gazebo in La Placita as it is part of a city park and will be untouched in the redevelopment.
Mabry says the developer has taken some good steps forward in its initial designs, reversing improper alterations made to the historic structures when the La Placita project was built in the 1970s.
Historical commission members, he said, were largely supportive of the recently unveiled designs.
βCommissioners requested additional drawings to answer questions about these issues, but they were supportive of the general concept of the project because it preserves and restores the historic buildings, and puts them into new uses,β he said.
However, with no indications of ground-floor retail, he worries whether the preserved historic buildings will continue to be accessible to the public, or just to the residents of the apartment complex.
Omar Mireles, the president of HSL Properties, said the designs were simply conceptual, and his company has plans for ground-floor retailers that allow for public access to the historic structures.
While still in the nascent stages, he said the company was considering opening a restaurant and a coffee shop inside the project.
Mireles said he hoped to break ground next year on the project, but acknowledged the company has a long road ahead regarding the development process.
Mayor Jonathan Rothschild hadnβt seen the plans but said he was glad the redevelopment of the property is moving forward.
While there are few details about who the development will be marketed to, the mayor hopes the development will eventually include some market-rate apartments.
Earlier in the year, HSL said their plans included building up to 230 apartments on the site, ranging from affordable housing for seniors and veterans to luxury condominiums.
La Placita Village, which opened in 1973, has more than 200,000 square feet of office and restaurant space and a 500-car parking garage.
All current tenants were told to vacate the property by the end of July.
Plans submitted to the city do not include any changes to La Placitaβs parking garage.



